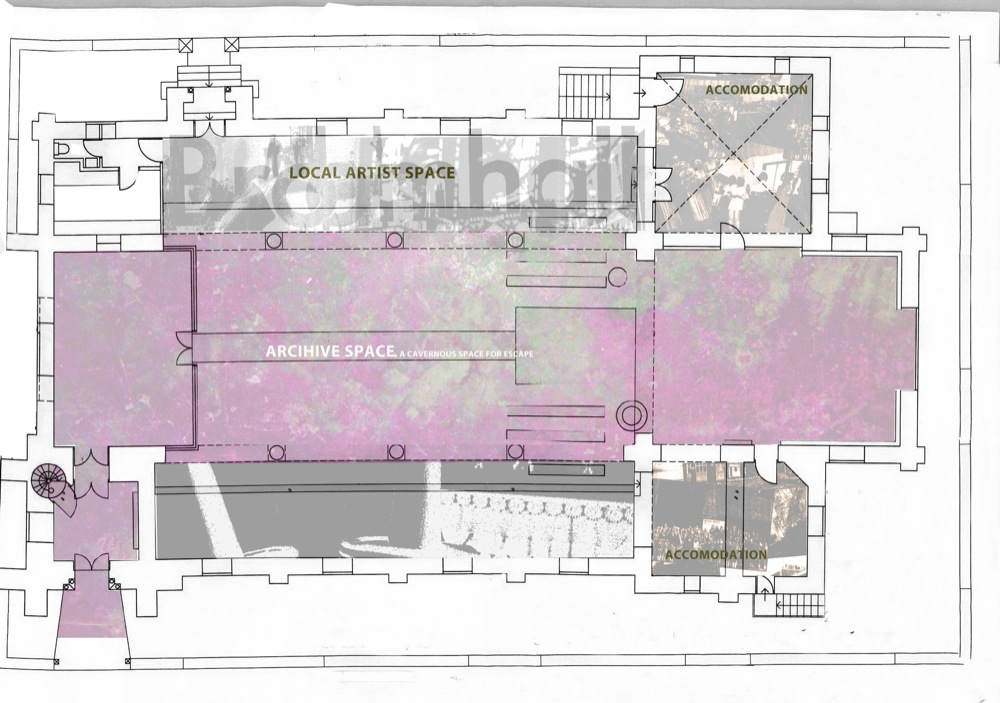
In the Spring of 2014, Jessica Pallot, a final year Architecture student, worked on our project and simultaneously carried out her research on the then derelict St Silas church, for her dissertation.
Here are some of her visionary drawings showing how she proposed St Silas could look as a creative artspace:









No Comments
Add a comment about this page